![]() |
||||||||||
![]() |
||||||||||
![]() |
![]() |
|||||||||
![]() |
![]() |
|||||||||
![]() |
||||||||||
![]() |
||||||||||
![]() |
||||||||||
![]() |
||||||||||
![]() |
||||||||||
![]() |
||||||||||
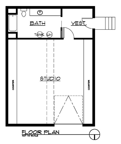
At the heart of an artist's glassblowing facility in a district of Eugene lies our study and documentation of thermal comfort levels for the tenants which inhabit this space. In particular, our analysis attempts to examine the small 24'x24' studio space, focusing on its Radiant Floor heating system.
The structure itself has been completed within the last ten years, and is comprised of wood-framed construction (R-19 Batt Insulation) with roof-trusses supporting a shingled roof. |
||||||||||
![]() |
||||||||||
Fire doors line the main studio space, as well as the secondary vestibule/restroom whereupon the distribution center for the radiant floor (as well as hot water heater) remain. There is one final overhead door which extends a partial distance of the North wall, to provide for the accessibility of opposing countertops.
The exterior of the structure is finished with lap-Cedar siding and accented by the cream colored doors and corner molds on the two operable penetrations into the structure. It is neighbor to an adjacent garage structure used for the storage of materials, tools, and supplies. Team Motivations: The idea of a radiant flooring system was one that was fairly new to all of us. In terms of a heating system, we wanted to find something that was foreign and intriguing to all of us, thus the opportunity to examine a radiant flooring system seemed opportune. In the midst of our introduction to the facility, there was an added bit of interest to be observed from the temperature increases of the glassblowing artists here. They seemed to enjoy a system that provided for a more constant temperature level, wherein there was little fluctuation between certain spots in the space, and a radiant floor provided just that. In addition, the owner of the facility remarked of the energy savings of the facility due to this type of heating system, which further sparked our interests of ecological/economical design processes. Where is the ventilation system, where does the heat go, how do these artists interact with their thermal environment? These were but some of the questions we started asking ourselves as the documentation of a radiant flooring system unfolded. |
||||||||||